Search
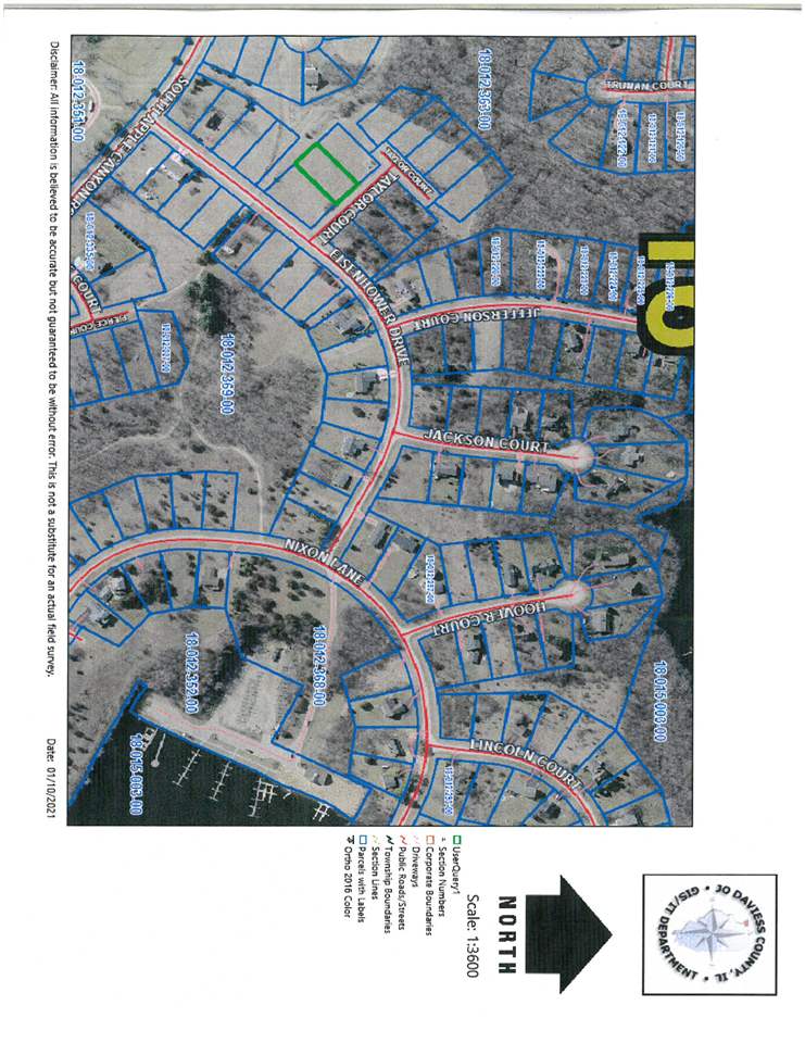
$3,000 12a207 Taylor Ct Thompson IL
Virtual Tour:
Lots & Acreage in Thompson
$3,000
| Bedrooms: | MLS ID: | 1900406 | ||
| Bathrooms: | Neighborhood: | |||
| Square Feet: | 0 | County: | ||
| Year Built: | Garage: | |||
| Acreage: | 0.36 | Basement: |
12a207 Taylor Ct Thompson IL 61001
Great building site just above Nixon beach and the trail is at the back of the lot. Time to enjoy yourself and the many natural amenities at Apple Canyon Lake. Trails are great for hiking or taking the golf cart or UTV on them. You're close up to nature and wildlife and you might even discover some painted rocks. The beach is a great place to gather with friends and sometimes hosts open air concerts. Fishing is fabulous and The Cove can be accessed via car, boat, cart or UTV. Great value! Covenants and Restrictions Apply.
Virtual Tour:
Elementary School: Call School District
Middle School: Call School District
High School: Call School District
Middle School: Call School District
High School: Call School District
Mortgage Calculator
Price: $
Down: $
Interest Rate: $
Mortgage Term: $
Payment: $
sponsored by:








Schedule a Viewing
Print This Page