- SEARCH ALL Listings
-
- MORTGAGE CALCULATOR
-
Price: $ Interest Rate: Down Payment: $ Mortgage Term: Payment: $
$629,000Commercial/Industrial in Minong


| Address: | 730 HOUSTON AVE | ||
| Area: | 58 - Northwood Schl Dist | Price: | $629,000 |
| Zip Code: | 54859 | Size: | 30,400 |
| County: | Washburn | Bedroom: | |
| Lake/River: | Bath: | ||
| School District: | Northwood | Acreage: | 7.35 |
| Year Built: | Basement: | None | |
| MLS #: | 815816 | Garage: | |
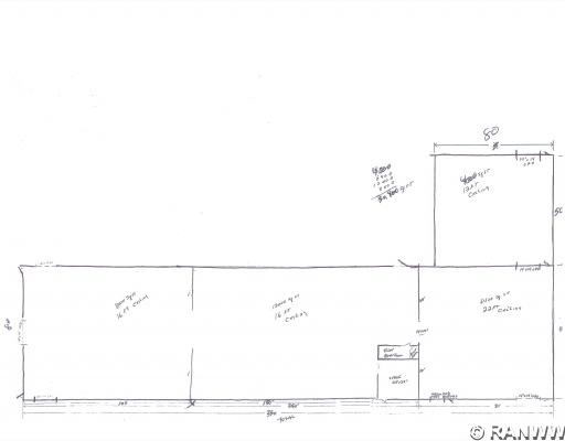
Description: 30,400 SG FT BUILDING ON 7 ACRES OF FENCED IN AREA WITH EASY ACCESS ON AND OFF THE 4 LANE HIGHWAY 53. THREE PHASE POWER, CITY WATER, CITY SEWER, LARGE OVER HEAD DOOR. HIGH CEILING HEIGHTS RANGE FROM 12 TO 22 FEET. AUTOMATIC FIRE SPRINKLER SYSTEM, 24' X 30' OFFICE & BREAK ROOM WITH RESTROOMS. ALL OTHER IS OPEN WITH SOME PART WALL DIVIDER.REAMINING LOT IS FARILY OPEN AND FLAT.
Amenities
|
- REAL ESTATE TOOLS
730 HOUSTON AVE Minong, WI
Add to Clipboard
View Clipboard
Email This Listing
Print This Page