- SEARCH ALL LISTINGS
-
- MORTGAGE CALCULATOR
-
Price: $ Interest Rate: Down Payment: $ Mortgage Term: Payment: $
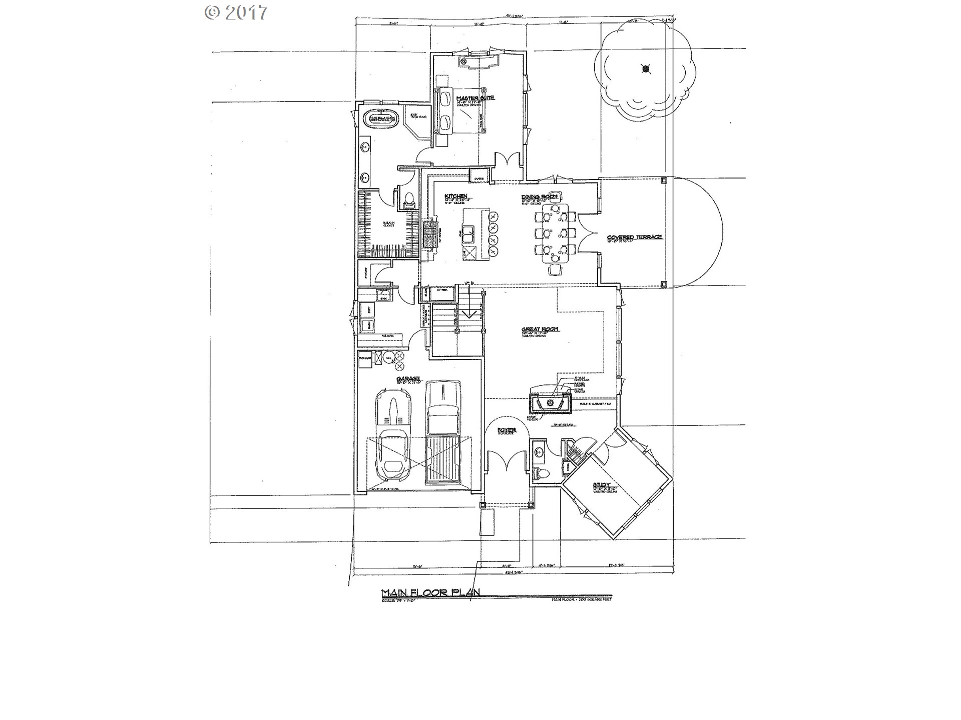
$1,189,000Residential in Portland, Or


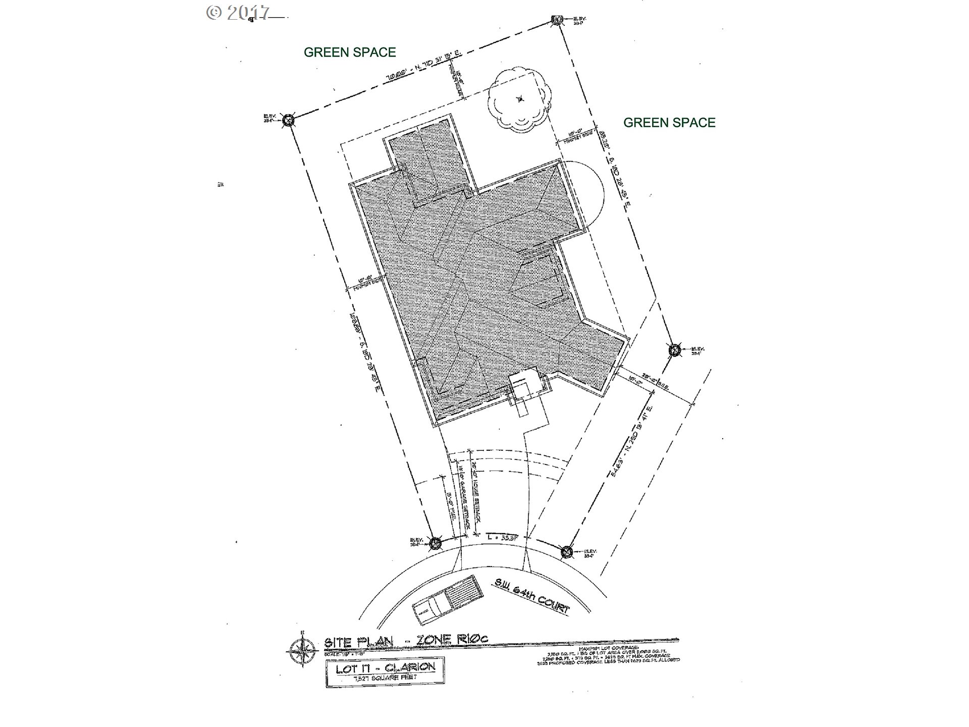
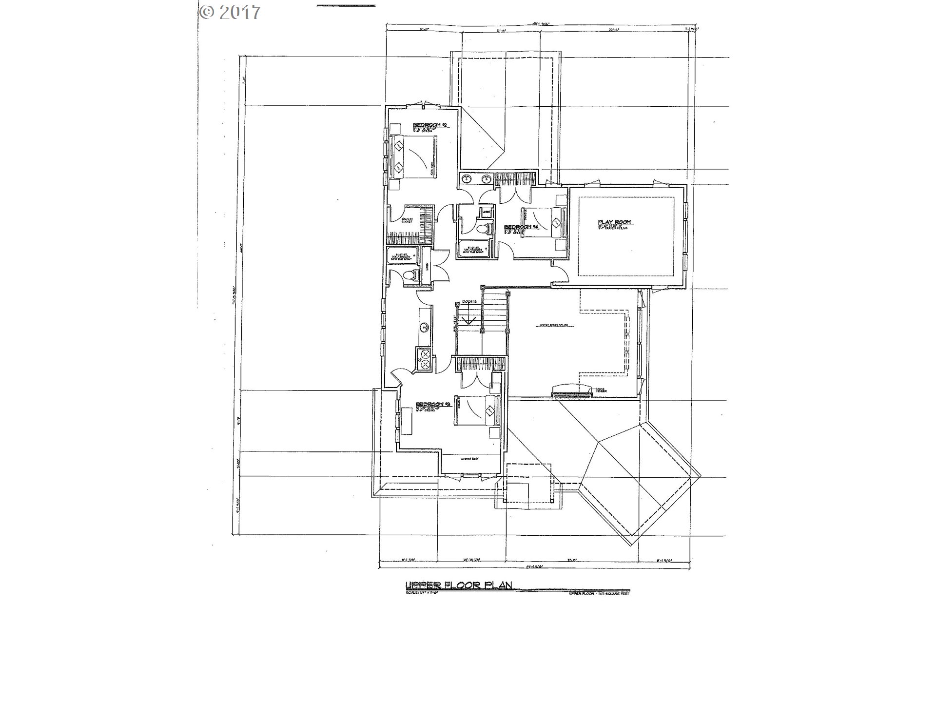
| Address: | 4201 SW 64TH | ||
| Location: | Portland, Or, OR | Price: | $1,189,000 |
| Zip Code: | 97221 | Size: | 3,429 |
| County: | Multnomah | Bedroom: | 4 |
| Neighborhood: | Clarion | Bath(s): | 3.1 |
| Tax Year: | Acreage: | 0.17 | |
| Year Built: | 2017 | Basement: | Crawlspace |
| MLS #: | 17694720 | Garage: | 2 Car =GarageType= |
Description: Now is your chance to build that custom home you've always wanted on a large flat lot that backs to a green space in a sought after Portland neighborhood. You will be working alongside one of Portland's top home builders, Ridgecrest Homes. This stunning open style floor plan with the master on the main and stunning kitchen is just waiting for you to finish with your custom ideas.
Amenities
|
Schools Bridlemile Wilson |
- REAL ESTATE TOOLS
4201 SW 64TH Portland, Or, OR
- ADVERTISING
- Feature your AD here!
Call (800) 574-3703 Today
- ADVERTISING
- Feature your AD here!
Call (800) 574-3703 Today
- ADVERTISING
- Feature your AD here!
Call (800) 574-3703 Today


Add to Clipboard
View Clipboard
Schedule a Viewing
Print This Page