- SEARCH ALL Listings
-
- MORTGAGE CALCULATOR
-
Price: $ Interest Rate: Down Payment: $ Mortgage Term: Payment: $
$235,000in Mill City


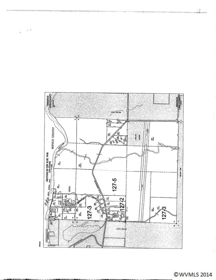
| Address: | * Dogwood | ||
| Location: | Mill City, OR | Price: | $235,000 |
| Zip Code: | 97360 | Size: | 0 |
| County: | Linn | Bedroom: | |
| Neighborhood: | Bath: | ||
| Year Built: | Acreage: | 5.6 | |
| MLS #: | 683159 | Basement: | |
| Garage: | |||
Description:
Amenities
|
Schools |









Add to Clipboard
View Clipboard
Schedule a Viewing
Print This Page