Search
- advertisement -
$22,000 State Rd 172 Lisbon
Virtual Tour:
Land in Lisbon
$22,000
| Bedrooms: | MLS ID: | 3835635 | ||
| Bathrooms: | Neighborhood: | |||
| Square Feet: | 0 | County: | Columbiana | |
| Year Built: | Garage: | |||
| Acreage: | 0.4305 | Basement: |
State Rd 172 Lisbon 44432
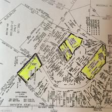
This sell is for one half of parcel Number 2703488024. The tax and information need to be confirmed at time of sale. Dimensions are approximate. Pins are in place for the re plat.
Virtual Tour:
Elementary School: United LSD
Middle School: United LSD
High School: United LSD
Middle School: United LSD
High School: United LSD
- Lot Description: Addt'l Land Avail
- Driveway: None
- Water and Sewer: Public Sewer,Well
Mortgage Calculator
Price: $
Down: $
Interest Rate: $
Mortgage Term: $
Payment: $
sponsored by:









Schedule a Viewing
Add to Clipboard
View Clipboard
Print This Page