Search
$5,000,000 000 Wayne Memorial Dr Goldsboro NC
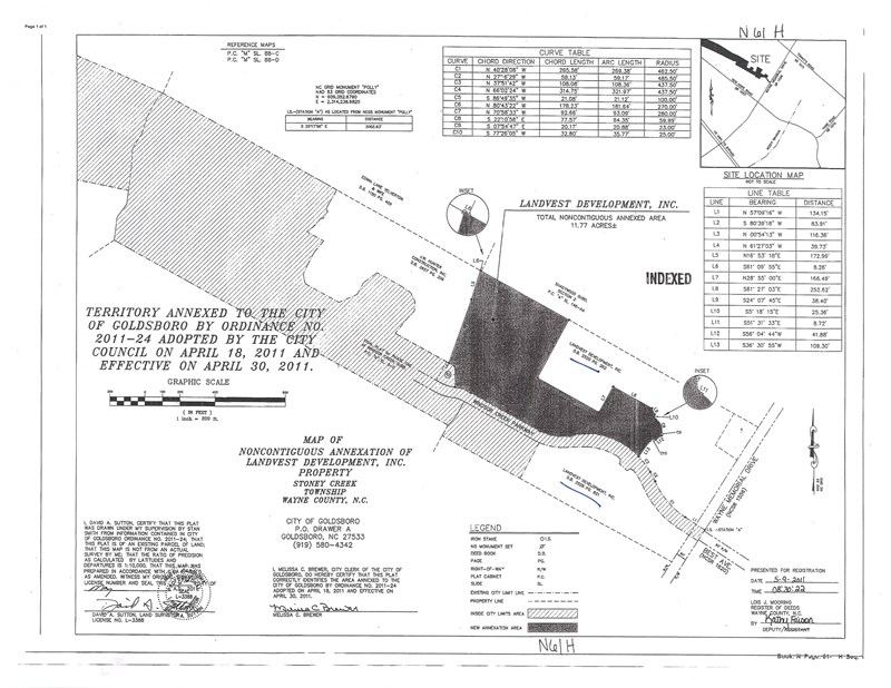
Land in Goldsboro
$5,000,000
| Bedrooms: | MLS ID: | 69238 | ||
| Bathrooms: | Neighborhood: | N/A | ||
| Square Feet: | 0 | County: | ||
| Year Built: | Garage: | |||
| Acreage: | Basement: |
000 Wayne Memorial Dr Goldsboro NC 27534
Commercial land for sale. Three different parcels. Great road road frontage. Property is adjacent to Windsor Creek. Owner of property is a NC licensed real estate agent.
Elementary School: Tommys Road
Middle School: Norwayne
High School: CBA
Middle School: Norwayne
High School: CBA
- Lot Dimensions: SEE DOCUMENTS
- Road Access: City Street
- Topography: Level
- Suitable Use: Other-See Remarks
Real Estate Tools
Add to Clipboard
View Clipboard
Email This Listing
Schedule a Viewing
Print This Page
Add to Clipboard
View Clipboard
Email This Listing
Schedule a Viewing
Print This Page
Mortgage Calculator
Price: $
Down: $
Interest Rate: $
Mortgage Term: $
Payment: $
sponsored by: Goldsboro News-Argus










