- SEARCH ALL Listings
-
- MORTGAGE CALCULATOR
-
Price: $ Interest Rate: Down Payment: $ Mortgage Term: Payment: $
$243,927Residential in Lexington


| Address: | |||
| Location: | , KY | Price: | $243,927 |
| Zip Code: | Size: | 0 | |
| County: | Fayette | Bedroom: | 3 |
| Neighborhood: | Chilesburg | Bath: | 2 |
| Tax Year: | Acreage: | ||
| Year Built: | Basement: | ||
| MLS #: | 355782 | Garage: | |
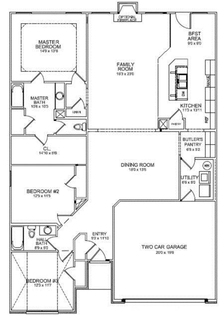
Description: The COMPLETED Baldwin Expanded, Elevation A, by Ball Homes is a very popular ranch floor plan. The dining room, kitchen, and family room all flow together for an open layout that is great for entertaining. The kitchen includes a serving bar to the family room, a pantry, and separate breakfast area. A butler's pantry adds a luxury touch, as well as a convenient serving point between the kitchen and formal dining room. The master bedroom has a tray ceiling, a large walk-in closet and the master bath features a fully tiles shower and whirlpool tub with a widow above it. Bedrooms two and three share a bath and semi-private hallway. Other plan features include a pass-through utility room layout, a covered entry, and a paladian window, vaulted ceilings in bedroom 3, fireplace with stone in family room, granite counter tops in kitchen, and stainless appliances. Lot 140PE
|
Amenities
|
Schools |
- REAL ESTATE TOOLS
, KY
- ADVERTISING
- Feature your AD here!
Call (502) 863-1111 Today
- ADVERTISING
- Feature your AD here!
Call (502) 863-1111 Today
- ADVERTISING
- Feature your AD here!
Call (502) 863-1111 Today

Add to Clipboard
View Clipboard
Email This Listing
Schedule a Viewing
Print This Page