- SEARCH ALL Listings
-
- MORTGAGE CALCULATOR
-
Price: $ Interest Rate: Down Payment: $ Mortgage Term: Payment: $
$253,065Residential in Georgetown


| Address: | |||
| Location: | , KY | Price: | $253,065 |
| Zip Code: | Size: | 0 | |
| County: | Scott | Bedroom: | 4 |
| Neighborhood: | Abbey at Old Oxford | Bath: | 3 |
| Tax Year: | Acreage: | ||
| Year Built: | Basement: | ||
| MLS #: | 355315 | Garage: | |
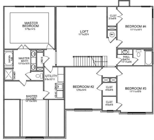
Description: To be built! The Livingston is a traditionally styled two-story plan with a three car tandem garage. Keep organized with a drop zone off the garage entry, which offers a built-in boot bench option. First floor includes a formal dining and a study with a triple french door, a spacious family room with wood burning fireplace that includes a raised stone hearth and drystacked stone surround, and a large open kitchen with an elliptical island, corner pantry and breakfast area with additional cabinets and wine center option. The formal dining room is open to the foyer and also via a pass-through from the kitchen. Upstairs, the master suite includes a large double bowl vanity, fully tiled shower, framless door, large soaker tub with tiled surroung and three roomy bedrooms with spacious closets surround a central loft. The room-sized master closet offers a dual area layout. The upstairs utility room is accessible from the master closet and from the upstairs hall and includes a folding counter
|
Amenities
|
Schools |
- REAL ESTATE TOOLS
, KY
- ADVERTISING
- Feature your AD here!
Call (502) 863-1111 Today
- ADVERTISING
- Feature your AD here!
Call (502) 863-1111 Today
- ADVERTISING
- Feature your AD here!
Call (502) 863-1111 Today

Add to Clipboard
View Clipboard
Email This Listing
Schedule a Viewing
Print This Page