- SEARCH ALL Listings
-
- MORTGAGE CALCULATOR
-
Price: $ Interest Rate: Down Payment: $ Mortgage Term: Payment: $
$182,115Residential in Georgetown


| Address: | |||
| Location: | , KY | Price: | $182,115 |
| Zip Code: | Size: | 0 | |
| County: | Scott | Bedroom: | 3 |
| Neighborhood: | Pleasant Valley | Bath: | 3 |
| Tax Year: | Acreage: | ||
| Year Built: | Basement: | ||
| MLS #: | 354359 | Garage: | |
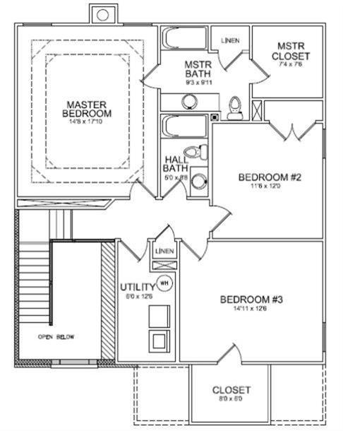
Description: To be built! The Brooklyn has a large two story foyer that creates an impressive entry and has a distinctive barrel vault above the doorway which marks the transition to the main living areas on the 1st floor with 9' ceilings. The Family Room is large with a Wood-Burning Fireplace, Raised Stone Hearth, and drystack stone to ceiling with a wood mantel open to the kitchen, which includes an island sink and breakfast bar, as well as a pantry. The adjacent breakfast area also overlooks the rear yard. Upstairs, the large master bedroom is defined by a double tray ceiling. The master bath has a Fully Tiled Shower with frameless glass door and large soaking tub with tile surround, opens to a large walk in closet. Two more bedrooms, a hall bath, linen storage, and a utility room complete the second floor. Bedroom Three offers an unusually large walk-in closet. The front elevation features include a covered porch, shake siding accents, and a feature window.
|
Amenities
|
Schools |
- REAL ESTATE TOOLS
, KY
- ADVERTISING
- Feature your AD here!
Call (502) 863-1111 Today
- ADVERTISING
- Feature your AD here!
Call (502) 863-1111 Today
- ADVERTISING
- Feature your AD here!
Call (502) 863-1111 Today

Add to Clipboard
View Clipboard
Email This Listing
Schedule a Viewing
Print This Page