- SEARCH ALL Listings
-
- MORTGAGE CALCULATOR
-
Price: $ Interest Rate: Down Payment: $ Mortgage Term: Payment: $
$173,256Residential in Versailles


| Address: | |||
| Location: | , KY | Price: | $173,256 |
| Zip Code: | Size: | 0 | |
| County: | Woodford | Bedroom: | 3 |
| Neighborhood: | Gleneagles | Bath: | 2 |
| Tax Year: | Acreage: | ||
| Year Built: | Basement: | ||
| MLS #: | 345349 | Garage: | |
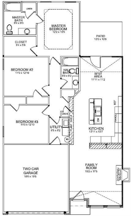
Description: The Coventry II by Ball Homes LLC. Features a fireplace in the family room. The FR & kitchen share a pass-through for easy entertaining & the kitchen includes a breakfast bar for quick and casual meals, plus a large breakfast area overlooking the rear yard. A mudroom/utility room combination, which leads to the garage, adds a nice convenience feature usually found in larger homes. Exterior details include a sheltered patio location, a covered entry and brick front. Lot# 9WA
|
Amenities
|
Schools |
- REAL ESTATE TOOLS
, KY
- ADVERTISING
- Feature your AD here!
Call (502) 863-1111 Today
- ADVERTISING
- Feature your AD here!
Call (502) 863-1111 Today
- ADVERTISING
- Feature your AD here!
Call (502) 863-1111 Today

Add to Clipboard
View Clipboard
Email This Listing
Schedule a Viewing
Print This Page