- SEARCH ALL Listings
-
- MORTGAGE CALCULATOR
-
Price: $ Interest Rate: Down Payment: $ Mortgage Term: Payment: $
$277,870Residential in Lexington


| Address: | |||
| Location: | , KY | Price: | $277,870 |
| Zip Code: | Size: | 0 | |
| County: | Fayette | Bedroom: | 4 |
| Neighborhood: | Glasford | Bath: | 3 |
| Tax Year: | Acreage: | ||
| Year Built: | Basement: | ||
| MLS #: | 352992 | Garage: | |
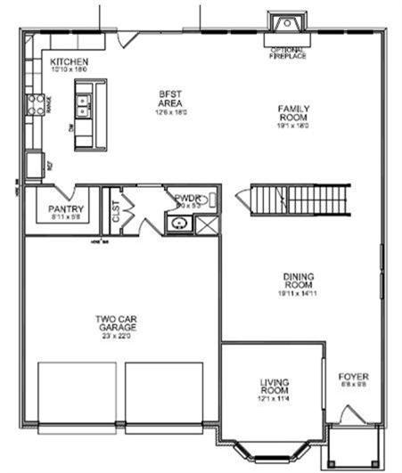
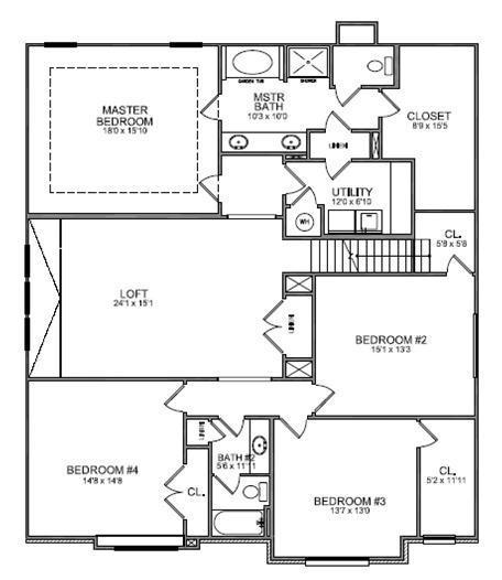
Description: The Wakefield plan incorporates a nice use of style and space with an open concept family room, breakfast area and kitchen. The kitchen includes a walk-in pantry and spacious island with breakfast bar. The living room includes a beautiful bay window and eases into the entry foyer and formal dining room. Upstairs, the master suite has a dual vanity, a garden tub, 4' x 3' 8 fully tiled shower with a 4' frameless heavy clear glass shower door, clear glass between the shower and garden tub, a spacious master closet, and convenient access to the upstairs utility room with separate folding area. An open loft with 9' ceiling finishes off the upstairs and connects the three bedrooms and hall bathroom. The fireplace has a raised dry stacked stone hearth and stone to the ceiling.
|
Amenities
|
Schools |
- REAL ESTATE TOOLS
, KY
- ADVERTISING
- Feature your AD here!
Call (502) 863-1111 Today
- ADVERTISING
- Feature your AD here!
Call (502) 863-1111 Today
- ADVERTISING
- Feature your AD here!
Call (502) 863-1111 Today

Add to Clipboard
View Clipboard
Email This Listing
Schedule a Viewing
Print This Page