- SEARCH ALL Listings
-
- MORTGAGE CALCULATOR
-
Price: $ Interest Rate: Down Payment: $ Mortgage Term: Payment: $
$199,335Residential in Lexington


| Address: | |||
| Location: | , KY | Price: | $199,335 |
| Zip Code: | Size: | 0 | |
| County: | Fayette | Bedroom: | 3 |
| Neighborhood: | Glasford | Bath: | 3 |
| Tax Year: | Acreage: | ||
| Year Built: | Basement: | ||
| MLS #: | 352505 | Garage: | |
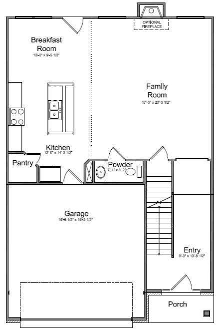
Description: The Springdale floor plan; The two-story foyer opens up into the large family room; The kitchen features a kitchen island, large corner pantry, variable height cabinets and separate breakfast room; Upstairs, the Master suite includes a separate commode closet, access to the large walk-in closet, the bath has a fully tiled shower with a 4 ft frameless clear glass shower door with return panel and a garden tub; Bedrooms #2 and #3 share a Jack-and-Jill style bathroom, and include spacious walk-in closets; An over-sized linen closet and upstairs utility room finish off the upstairs; other upgrades are: Kashmir gold lav top w/white undermount sink in al bath rooms; 5.25 baseboards (excluding the garage); smooth ceilings (excluding the garage); 80 gallon water heater; Lot 27 LA
|
Amenities
|
Schools |
- REAL ESTATE TOOLS
, KY
- ADVERTISING
- Feature your AD here!
Call (502) 863-1111 Today
- ADVERTISING
- Feature your AD here!
Call (502) 863-1111 Today
- ADVERTISING
- Feature your AD here!
Call (502) 863-1111 Today

Add to Clipboard
View Clipboard
Email This Listing
Schedule a Viewing
Print This Page