- SEARCH ALL Listings
-
- MORTGAGE CALCULATOR
-
Price: $ Interest Rate: Down Payment: $ Mortgage Term: Payment: $
$183,939Residential in Richmond


| Address: | |||
| Location: | , KY | Price: | $183,939 |
| Zip Code: | Size: | 0 | |
| County: | Madison | Bedroom: | 3 |
| Neighborhood: | Hampton Ridge | Bath: | 3 |
| Tax Year: | Acreage: | ||
| Year Built: | Basement: | ||
| MLS #: | 352409 | Garage: | |
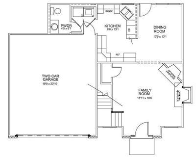
Description: The Wagner floor plan by BALL HOMES. This home is currently in the framing stage with an estimated completion date of October 2014. The Kitchen will boast twilight cabinets, a stainless appliance package, travertine backsplash and laminate flooring. The family room will have a wood burring fireplace and laminate flooring at the entry. Upstairs you will find three generous sized bedrooms and two full baths. First floor laundry and 1/2 bath round out this home. This home sits on an unfinished basement. Lot 110RF
|
Amenities
|
Schools |
- REAL ESTATE TOOLS
, KY
- ADVERTISING
- Feature your AD here!
Call (502) 863-1111 Today
- ADVERTISING
- Feature your AD here!
Call (502) 863-1111 Today
- ADVERTISING
- Feature your AD here!
Call (502) 863-1111 Today

Add to Clipboard
View Clipboard
Email This Listing
Schedule a Viewing
Print This Page