- SEARCH ALL Listings
- 
				
				
		
- MORTGAGE CALCULATOR
- 
				    
				    Price: $ Interest Rate: Down Payment: $ Mortgage Term: Payment: $ 
  $165,588Residential in Lexington
				
       
      
      
      		    
		      
|  |  |  |  |  |  | 
| Address: | |||
| Location: | , KY | Price: | $165,588 | 
| Zip Code: | Size: | 0 | |
| County: | Fayette | Bedroom: | 3 | 
| Neighborhood: | Chilesburg | Bath: | 2 | 
| Tax Year: | Acreage: | ||
| Year Built: | Basement: | ||
| MLS #: | 352331 | Garage: | |
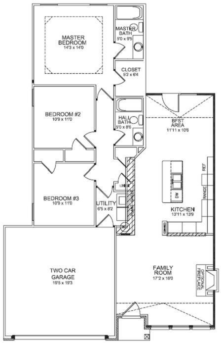
Description: The Coventry is a three bedroom ranch plan by Ball Homes, LLC that offers an oversized one car garage. The family room, kitchen and breakfast area share a vaulted ceiling that rises to a 10' height. The family room and kitchen share a pass-through for easy entertaining and the kitchen includes a breakfast bar for quick and casual meals, plus a large breakfast area overlooking the rear yard. The bedrooms are located off a private hallway and the master bedroom includes a trey ceiling and a private bath with 5X3 fully tiled shower with clear glass door.  A mudroom/utility room combination which leads to the garage adds a nice convenience feature. Features Included: Smooth Ceilings, Granite Lav Tops, 5.25 baseboards, Upgraded Carper & Pad, Laminate Flooring in the Entry, Kit/Bfst, Family & Hall, Kitchen Backsplash and Stainless Kitchen Appliances including Refrigerator, Range/Oven, Microhood and Dishwasher. 8KE
			  
			
			  
			
			  | Amenities | Schools | 
- REAL ESTATE TOOLS
	     , KY
	  
	  
                               			  
	
	  
                              				
                              				  
                              				    
  
											  
											
	  
	
  - ADVERTISING
- Feature your AD here!
 Call (502) 863-1111 Today
- ADVERTISING
- Feature your AD here!
 Call (502) 863-1111 Today
- ADVERTISING
- Feature your AD here!
 Call (502) 863-1111 Today

 Add to Clipboard
Add to Clipboard View Clipboard
View Clipboard Email This Listing
Email This Listing Schedule a Viewing
Schedule a Viewing Print This Page
Print This Page