- SEARCH ALL Listings
-
- MORTGAGE CALCULATOR
-
Price: $ Interest Rate: Down Payment: $ Mortgage Term: Payment: $
$175,350Residential in Lexington


| Address: | |||
| Location: | , KY | Price: | $175,350 |
| Zip Code: | Size: | 0 | |
| County: | Fayette | Bedroom: | 3 |
| Neighborhood: | Chilesburg | Bath: | 2 |
| Tax Year: | Acreage: | ||
| Year Built: | Basement: | ||
| MLS #: | 352327 | Garage: | |
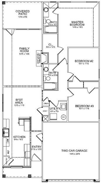
Description: The Morgan is a Cottage ranch plan that incorporates several items in demand among today's homebuyers: a full two car garage, a covered rear patio, and a 9' ceiling design throughout most of the main living areas that creates openness. The home's kitchen and living spaces flow together to occupy one side of the house, while the three bedrooms are located off a more private hallway on the other side. Master suite features include a large walk-in closet, and private bath with window. The Morgan includes a walk-in utility room, linen and coat closets, and a kitchen with pantry, breakfast bar, and window over the sink. Two exterior elevations are available, and both include a covered entry, and brick fronts with shake siding accents. Upgrades include: 5' tile shower, heavy clear glass frameless shower door, transom window above shower; 42inch tall twilight kitchen cabinets; smooth ceilings; Upgraded baseboards; Stainless Steel appliance package. (Lot 9LE)
|
Amenities
|
Schools |
- REAL ESTATE TOOLS
, KY
- ADVERTISING
- Feature your AD here!
Call (502) 863-1111 Today
- ADVERTISING
- Feature your AD here!
Call (502) 863-1111 Today
- ADVERTISING
- Feature your AD here!
Call (502) 863-1111 Today

Add to Clipboard
View Clipboard
Email This Listing
Schedule a Viewing
Print This Page