- SEARCH ALL Listings
-
- MORTGAGE CALCULATOR
-
Price: $ Interest Rate: Down Payment: $ Mortgage Term: Payment: $
$270,410Residential in Lexington


| Address: | |||
| Location: | , KY | Price: | $270,410 |
| Zip Code: | Size: | 0 | |
| County: | Fayette | Bedroom: | 3 |
| Neighborhood: | Walnut Hill Club | Bath: | 3 |
| Tax Year: | Acreage: | ||
| Year Built: | Basement: | ||
| MLS #: | 352045 | Garage: | |
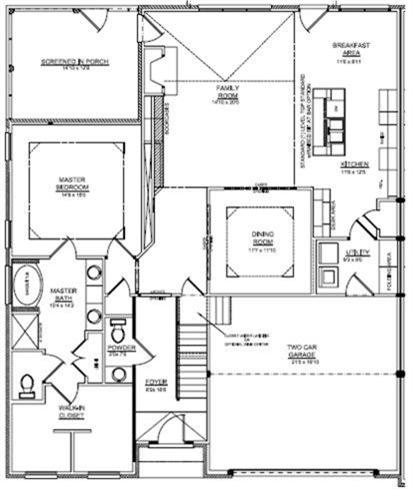
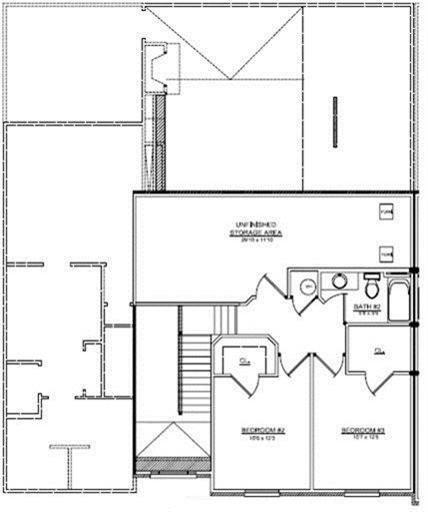
Description: The Tuscany II is a two story with a luxurious Master Suite on the first floor consisting of a trey ceiling, Master bath with a 42X60 soaker tub, 8ft fully tiled walk in shower, double vanity, linen closet, huge walk in closet and a beautiful sunroom with vaulted bead board ceiling attached to the Master. The first floor includes a two story foyer, vaulted family room with bookcase and direct vent gas fireplace with a raised stone hearth and dry stacked stone to ceiling, formal dining room with trey ceiling and wainscoting , upgraded open kitchen with corner desk area, includes 42 in Maple Dulce variable height wall cabinets and separate laundry room. The second floor includes two bedrooms with walk-in closets, a full bath, loft area and an unfinished storage area. Includes a 17x10 covered patio. You have time to pick upgrades like flooring, paint color, granite, lighting and appliances. Located on lot 46LME in Walnut Hill Club. ________________________________________
|
Amenities
|
Schools |
- REAL ESTATE TOOLS
, KY
- ADVERTISING
- Feature your AD here!
Call (502) 863-1111 Today
- ADVERTISING
- Feature your AD here!
Call (502) 863-1111 Today
- ADVERTISING
- Feature your AD here!
Call (502) 863-1111 Today

Add to Clipboard
View Clipboard
Email This Listing
Schedule a Viewing
Print This Page