- SEARCH ALL Listings
-
- MORTGAGE CALCULATOR
-
Price: $ Interest Rate: Down Payment: $ Mortgage Term: Payment: $
$263,530Residential in Lexington


| Address: | |||
| Location: | , KY | Price: | $263,530 |
| Zip Code: | Size: | 0 | |
| County: | Fayette | Bedroom: | 4 |
| Neighborhood: | Bryant Oak Place | Bath: | 3 |
| Tax Year: | Acreage: | ||
| Year Built: | Basement: | ||
| MLS #: | 352035 | Garage: | |
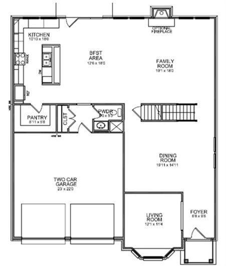
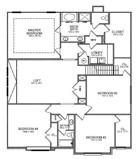
Description: The Wakefield plan incorporates a nice use of style and space with an open concept family room, breakfast area and kitchen. The kitchen includes a walk-in pantry and spacious island with breakfast bar. The living room includes a beautiful bay window and eases into the entry foyer and formal dining room. Upstairs, the master suite offers luxury bath essentials, including an 8 foot double bowl vanity, drop in soaker tub with tile surround with a window above it, a fully tiled shower, and a spacious master closet, with convenient access to the upstairs utility room with a separate folding area. An open loft with 9' ceiling finishes off the upstairs and connects the three bedrooms and hall bathroom. Other features include a pocket office, mudroom and drop zone to leave coats and bags when entering the home from the garage. Lot 3LO.
|
Amenities
|
Schools |
- REAL ESTATE TOOLS
, KY
- ADVERTISING
- Feature your AD here!
Call (502) 863-1111 Today
- ADVERTISING
- Feature your AD here!
Call (502) 863-1111 Today
- ADVERTISING
- Feature your AD here!
Call (502) 863-1111 Today

Add to Clipboard
View Clipboard
Email This Listing
Schedule a Viewing
Print This Page