- SEARCH ALL Listings
-
- MORTGAGE CALCULATOR
-
Price: $ Interest Rate: Down Payment: $ Mortgage Term: Payment: $
$190,395Residential in Lexington


| Address: | |||
| Location: | , KY | Price: | $190,395 |
| Zip Code: | Size: | 0 | |
| County: | Fayette | Bedroom: | 3 |
| Neighborhood: | Masterson | Bath: | 3 |
| Tax Year: | Acreage: | ||
| Year Built: | Basement: | ||
| MLS #: | 352031 | Garage: | |
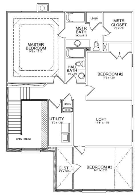
Description: The Inglewood is an impressive two story plan with 3 bedrooms & a 2 car garage and makes great use of available space. The large 2-story foyer creates an impressive entry. A distinctive barrel vault above the doorway marks the transition to the main living areas. The Family Room is large & open with 4 windows overlooking the rear yard & a wood burning FP with raised stone hearth to the ceiling. The Fam. Rm is open to the kitchen, with an island sink & breakfast bar, variable height cabinets, as well as a large pantry. The adjacent breakfast area also overlooks the rear yard with plenty of natural light. Upstairs, the large master bedroom is has a double tray ceiling. The master bath has a 60 x 32 tub/shower combo and 6' double bowl vanity & opens to a large walk-in closet. Two more bedrooms, a hall bath, linen storage, a spacious utility room & an open loft area complete the second floor. The front door is a Craftsman 3 lite in white wood grain finish. Home is a just started. Lot 263
|
Amenities
|
Schools |
- REAL ESTATE TOOLS
, KY
- ADVERTISING
- Feature your AD here!
Call (502) 863-1111 Today
- ADVERTISING
- Feature your AD here!
Call (502) 863-1111 Today
- ADVERTISING
- Feature your AD here!
Call (502) 863-1111 Today

Add to Clipboard
View Clipboard
Email This Listing
Schedule a Viewing
Print This Page