- SEARCH ALL Listings
-
- MORTGAGE CALCULATOR
-
Price: $ Interest Rate: Down Payment: $ Mortgage Term: Payment: $
$234,210Residential in Versailles


| Address: | |||
| Location: | , KY | Price: | $234,210 |
| Zip Code: | Size: | 0 | |
| County: | Woodford | Bedroom: | 3 |
| Neighborhood: | Gleneagles | Bath: | 2 |
| Tax Year: | Acreage: | ||
| Year Built: | Basement: | ||
| MLS #: | 351675 | Garage: | |
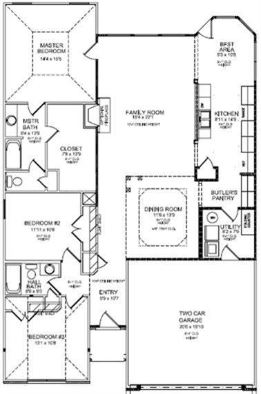
Description: The Manhattan plan by Ball Homes, LLC on Walkout Basement. Features include open living area that is highlighted by a fireplace with raised hearth & stone to ceiling. The master bedroom includes a deep tray ceiling w/ceiling fan, the master bath features a soaker tub, a fully tiled shower and a double bowl granite vanity. The vanity is raised for convenience. Bedroom #3 has vaulted ceilings and a plant shelf above the closet. The home's many upgrades include rough-in bsmt plumbing, smooth ceilings, 42 inch cabinetry, upgraded carpeting & pad, laminate and ceramic tile flooring, 2-tone paint, and stainless steel appliances including a microwave and side by side refrigerator. Trim stage of construction. Lot # 96WA.
|
Amenities
|
Schools |
- REAL ESTATE TOOLS
, KY
- ADVERTISING
- Feature your AD here!
Call (502) 863-1111 Today
- ADVERTISING
- Feature your AD here!
Call (502) 863-1111 Today
- ADVERTISING
- Feature your AD here!
Call (502) 863-1111 Today

Add to Clipboard
View Clipboard
Email This Listing
Schedule a Viewing
Print This Page