- SEARCH ALL Listings
-
- MORTGAGE CALCULATOR
-
Price: $ Interest Rate: Down Payment: $ Mortgage Term: Payment: $
$241,593Residential in Lexington


| Address: | |||
| Location: | , KY | Price: | $241,593 |
| Zip Code: | Size: | 0 | |
| County: | Fayette | Bedroom: | 3 |
| Neighborhood: | Chilesburg | Bath: | 3 |
| Tax Year: | Acreage: | ||
| Year Built: | Basement: | ||
| MLS #: | 351565 | Garage: | |
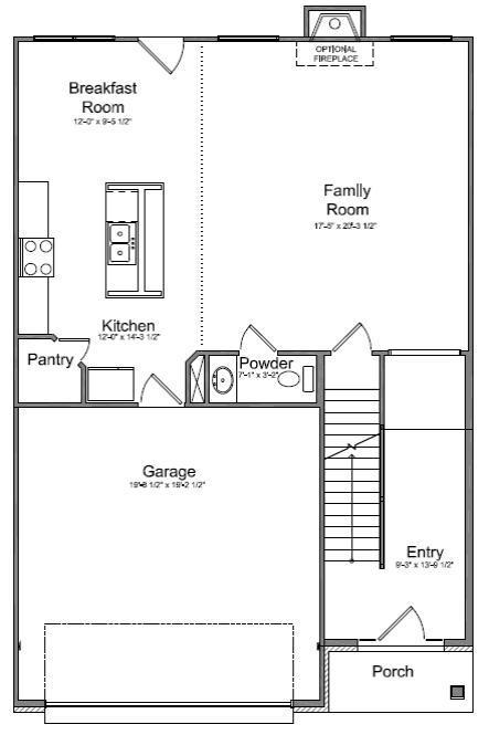
Description: BASEMENT walls are POURED ! The Springdale by Ball Homes. The two-story foyer opens up into the large family room with an optional fireplace along the back wall. The kitchen features a kitchen island, large corner pantry and separate breakfast room.Upstairs, the Master suite includes a separate commode closet, access to the large walk-in closet and a variety of luxury bath options including a fully tiled shower and whirlpool or garden tub.Bedrooms #2 and #3 share a Jack-and-Jill style bathroom, and include spacious walk-in closets. An over-sized linen closet and upstairs utility room finish off the upstairs.Upgrades include:walk out basement,basement full bath rough in,4 x 3'2 fully tiled shower,36 x 72 drop in soaker tub,6' double bowl vanity in master,42 cabinets,wrought iron railings,granite bathroom tops,2 ceiling fans,upgraded carpet and pad along with tile and laminate flooring,kitchen countertops are granite,stainless steel appliance package . 103DE
|
Amenities
|
Schools |
- REAL ESTATE TOOLS
, KY
- ADVERTISING
- Feature your AD here!
Call (502) 863-1111 Today
- ADVERTISING
- Feature your AD here!
Call (502) 863-1111 Today
- ADVERTISING
- Feature your AD here!
Call (502) 863-1111 Today

Add to Clipboard
View Clipboard
Email This Listing
Schedule a Viewing
Print This Page