- SEARCH ALL Listings
-
- MORTGAGE CALCULATOR
-
Price: $ Interest Rate: Down Payment: $ Mortgage Term: Payment: $
$359,500Residential in Lexington


| Address: | |||
| Location: | , KY | Price: | $359,500 |
| Zip Code: | Size: | 0 | |
| County: | Fayette | Bedroom: | 4 |
| Neighborhood: | Bryant Oak Place | Bath: | 3 |
| Tax Year: | Acreage: | ||
| Year Built: | Basement: | ||
| MLS #: | 351499 | Garage: | |
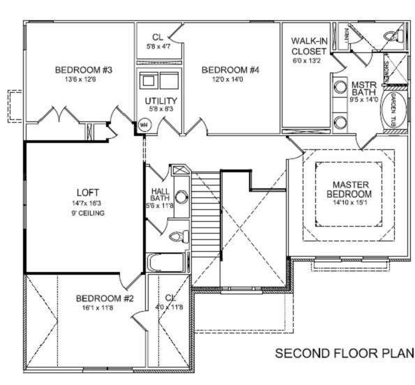
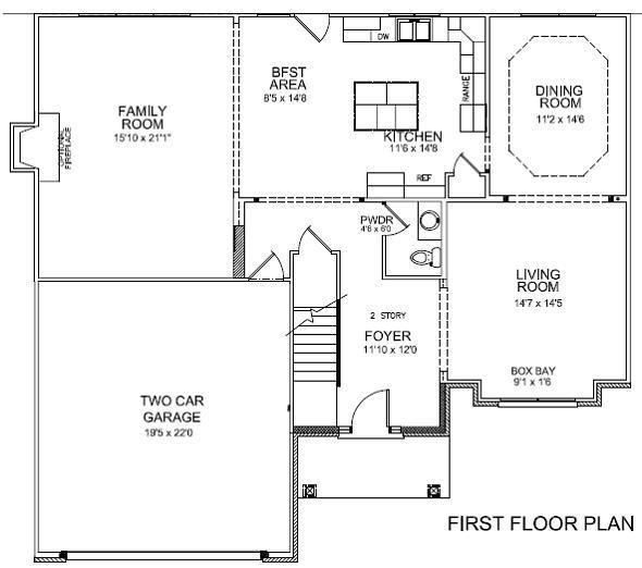
Description: Arlington II Expanded on full unfinished in-ground basement model home now for sale! This home features a mostly all brick and stone exterior with side entry garage on premium lot with irrigation system backing to trees. This four bedroom home has an upstairs master suite. Plan details include a two-story foyer, a trey ceiling in the dining room, a double trey ceiling in the master bedroom, and a vaulted ceiling in bedroom #2. The kitchen, breakfast area, and large family room share an open layout that is very family-friendly and great for entertaining. All bedrooms are good-sized, and have very spacious closets. The master suite includes a private luxury bath with fully tiled shower and separate tiled garden tub. Included Features: Stainless Appliances, Granite Counters, Hardwood Floors, Upgraded Carpet & Pad, Ceramic Tile, Wrought Iron Spindles, Direct Vent Fireplace, Rotundra Style Covered Deck, Blinds, Smooth Ceilings and much more. Easy to see!
|
Amenities
|
Schools |
- REAL ESTATE TOOLS
, KY
- ADVERTISING
- Feature your AD here!
Call (502) 863-1111 Today
- ADVERTISING
- Feature your AD here!
Call (502) 863-1111 Today
- ADVERTISING
- Feature your AD here!
Call (502) 863-1111 Today

Add to Clipboard
View Clipboard
Email This Listing
Schedule a Viewing
Print This Page