- SEARCH ALL Listings
-
- MORTGAGE CALCULATOR
-
Price: $ Interest Rate: Down Payment: $ Mortgage Term: Payment: $
$162,391Residential in Lexington


| Address: | |||
| Location: | , KY | Price: | $162,391 |
| Zip Code: | Size: | 0 | |
| County: | Fayette | Bedroom: | 3 |
| Neighborhood: | Greendale | Bath: | 3 |
| Tax Year: | Acreage: | ||
| Year Built: | Basement: | ||
| MLS #: | 351083 | Garage: | |
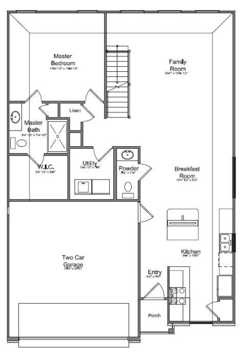
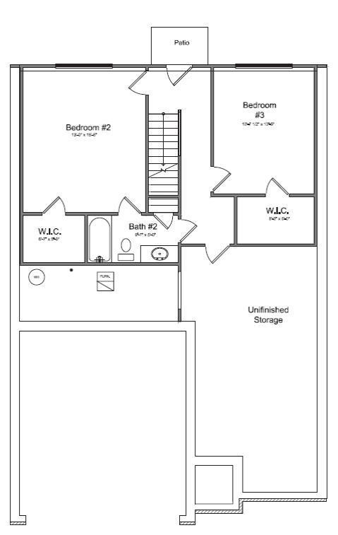
Description: The Halley floor plan by Ball Homes is a ranch plan with a finished walk-out basement. The main level of the home includes the kitchen, which features an island with breakfast bar, and overlooks the spacious breakfast room and large family room. The utility room is conveniently located close to the Master suite, which includes various bathroom upgrades, a linen closet and a spacious walk-in closet. The basement level of the home includes two bedrooms with spacious walk-in closets, a full bath, large unfinished storage space and back patio access. Lot#154FG
|
Amenities
|
Schools |
- REAL ESTATE TOOLS
, KY
- ADVERTISING
- Feature your AD here!
Call (502) 863-1111 Today
- ADVERTISING
- Feature your AD here!
Call (502) 863-1111 Today
- ADVERTISING
- Feature your AD here!
Call (502) 863-1111 Today

Add to Clipboard
View Clipboard
Email This Listing
Schedule a Viewing
Print This Page