- SEARCH ALL Listings
-
- MORTGAGE CALCULATOR
-
Price: $ Interest Rate: Down Payment: $ Mortgage Term: Payment: $
$272,950Residential in Lexington


| Address: | |||
| Location: | , KY | Price: | $272,950 |
| Zip Code: | Size: | 0 | |
| County: | Fayette | Bedroom: | 4 |
| Neighborhood: | Bryant Oak Place | Bath: | 3 |
| Tax Year: | Acreage: | ||
| Year Built: | Basement: | ||
| MLS #: | 351045 | Garage: | |
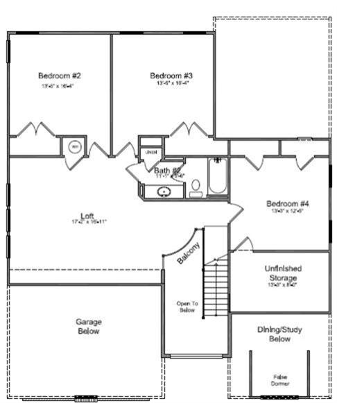
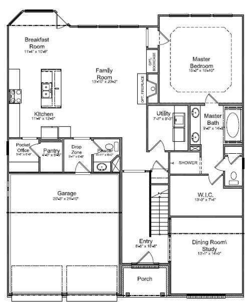
Description: **Flooring is currently being installed** The Rutherford floor plan's front entry has access to a wonderful flex area that can be used as a separate dining room or study. The open concept family room and kitchen features a separate breakfast area, kitchen island with breakfast bar, large pantry and pocket office, and a drop zone off the garage. Spacious bedrooms upstairs, with a huge loft and walk in storage! Upgrades include (but not limited too): Masterbath has 6' soaker tub with tile surround, fully tiled shower with heavy, clear glass frameless door, 7' double bowl vanity, 4x4 tempered glass window above the tub; direct vent fireplace with raised stone hearth; upgraded front door; bookcase adjacent to fireplace; optional pocket office, with optional utility room layout; upgraded cabinets classic2 cashmere, 42 wall cabinets, countertops venetian ice granite; Stainless steel appliance package; bathroom vanity tops are granite. (Lot 80LO)
|
Amenities
|
Schools |
- REAL ESTATE TOOLS
, KY
- ADVERTISING
- Feature your AD here!
Call (502) 863-1111 Today
- ADVERTISING
- Feature your AD here!
Call (502) 863-1111 Today
- ADVERTISING
- Feature your AD here!
Call (502) 863-1111 Today

Add to Clipboard
View Clipboard
Email This Listing
Schedule a Viewing
Print This Page