- SEARCH ALL Listings
-
- MORTGAGE CALCULATOR
-
Price: $ Interest Rate: Down Payment: $ Mortgage Term: Payment: $
$312,178Residential in Lexington


| Address: | |||
| Location: | , KY | Price: | $312,178 |
| Zip Code: | Size: | 0 | |
| County: | Fayette | Bedroom: | 3 |
| Neighborhood: | Reserve at Tates Creek | Bath: | 3 |
| Tax Year: | Acreage: | ||
| Year Built: | Basement: | ||
| MLS #: | 347856 | Garage: | |
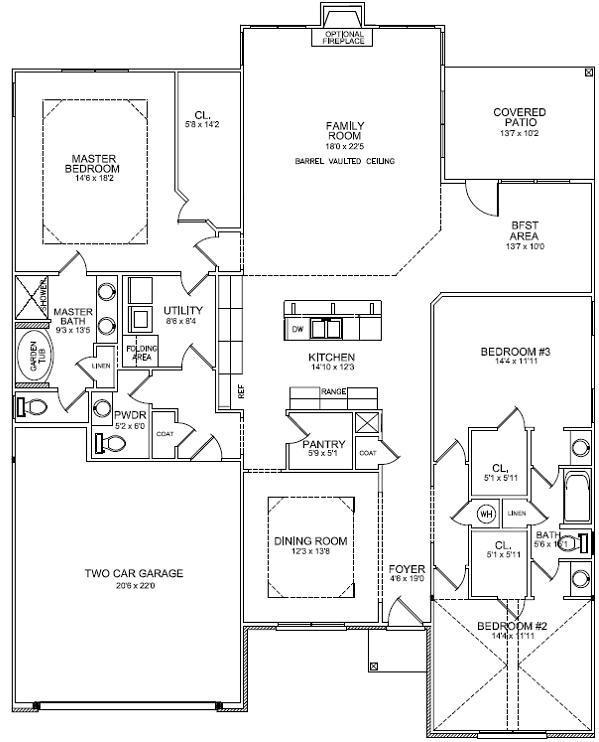
Description: This ranch style home offers two-and-a half baths and all the features today's buyers expect in a larger home plus some extras. Extras include: 4x4 window over the 6ft tub with tile, walk in shower with door, stone fireplace, upgraded front door, smooth ceilings, upgraded cabinets with under mount lighting & oversized baseboards. It has a master suite with tray ceiling, luxury bath, & large walk-in closet; a formal dining room with tray ceiling, plus full size breakfast area. It has a huge family room with a barrel-style vaulted ceiling. A covered patio is included. Bedrooms two and three and their shared bath are truly designed to be lived in. They have roomy dimensions, spacious walk-in closets and a bath layout that offers individual, private vanity areas, private closet access from the bath, and a shared linen closet. A big walk-in pantry off the kitchen and an offset in the two car garage offer great storage capacity.Ask about our special financing incentives. Energy Smart.15RT
|
Amenities
|
Schools |
- REAL ESTATE TOOLS
, KY
- ADVERTISING
- Feature your AD here!
Call (502) 863-1111 Today
- ADVERTISING
- Feature your AD here!
Call (502) 863-1111 Today
- ADVERTISING
- Feature your AD here!
Call (502) 863-1111 Today

Add to Clipboard
View Clipboard
Email This Listing
Schedule a Viewing
Print This Page