- SEARCH ALL Listings
-
- MORTGAGE CALCULATOR
-
Price: $ Interest Rate: Down Payment: $ Mortgage Term: Payment: $
$208,605Residential in Lexington


| Address: | |||
| Location: | , KY | Price: | $208,605 |
| Zip Code: | Size: | 0 | |
| County: | Fayette | Bedroom: | 3 |
| Neighborhood: | Glasford | Bath: | 3 |
| Tax Year: | Acreage: | ||
| Year Built: | Basement: | ||
| MLS #: | 347852 | Garage: | |
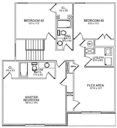
Description: The Berkley by Ball Homes has three bedrooms & a spacious flex area. The upstairs master suite has a 5 foot fully tiled shower with a frameless hinge & panel door, double bowl sing, plus his & her closets. The first floor features a spacious family room, kitchen with granite tops, breakfast bar plus a large dining area. The rear wall of the home is filled with windows overlooking the back yard, including three in the breakfast area & two more in the kitchen. The single atrium door is well placed to allow good traffic flow without interfering with the use of the either the dining area or the kitchen. Additional plan features include a kitchen pantry closet, pass-through window between the kitchen & family room, upstairs linen closet & covered front porch. 9 foot ceilings on the first floor; smooth ceilings excludes the garage; wrought iron railings on the steps; 5.25 base boards; upgraded carpet & pad; laminate flooring; level one tile; 2' foot garage extension; Lot 11 LA
|
Amenities
|
Schools |
- REAL ESTATE TOOLS
, KY
- ADVERTISING
- Feature your AD here!
Call (502) 863-1111 Today
- ADVERTISING
- Feature your AD here!
Call (502) 863-1111 Today
- ADVERTISING
- Feature your AD here!
Call (502) 863-1111 Today

Add to Clipboard
View Clipboard
Email This Listing
Schedule a Viewing
Print This Page