- SEARCH ALL Listings
-
- MORTGAGE CALCULATOR
-
Price: $ Interest Rate: Down Payment: $ Mortgage Term: Payment: $
$229,992Residential in Georgetown


| Address: | |||
| Location: | , KY | Price: | $229,992 |
| Zip Code: | Size: | 0 | |
| County: | Scott | Bedroom: | 3 |
| Neighborhood: | Pleasant Valley | Bath: | 2 |
| Tax Year: | Acreage: | ||
| Year Built: | Basement: | ||
| MLS #: | 346415 | Garage: | |
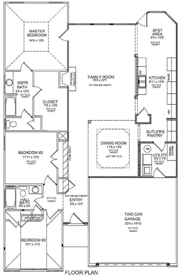
Description: The Manhattan II plan is one of the best selling plans. This ranch offers tall ceilings throughout most areas of the home providing an open feeling and is visually appealing. Experience the open feel this home offers due to the tall ceilings and open layout. The master suite includes a deep trey ceiling and the ultimate luxury bath options. They include a double bowl raised vanity, fully tiled shower with heavy clear glass door and return, and a drop-in soaker tub with tile surround. Plan to finish the basement? This basement is plumbed and ready for a full bath and floor trusses instead of I-beams. That means no more dropped ceiling chases because the utilities can be tucked inside floor truss. Ask about the two percent incentive through Walden Mortgage. Job# 19RV
|
Amenities
|
Schools |
- REAL ESTATE TOOLS
, KY
- ADVERTISING
- Feature your AD here!
Call (502) 863-1111 Today
- ADVERTISING
- Feature your AD here!
Call (502) 863-1111 Today
- ADVERTISING
- Feature your AD here!
Call (502) 863-1111 Today

Add to Clipboard
View Clipboard
Email This Listing
Schedule a Viewing
Print This Page