- SEARCH ALL Listings
-
- MORTGAGE CALCULATOR
-
Price: $ Interest Rate: Down Payment: $ Mortgage Term: Payment: $
$250,980Residential in Lexington


| Address: | |||
| Location: | , KY | Price: | $250,980 |
| Zip Code: | Size: | 0 | |
| County: | Fayette | Bedroom: | 4 |
| Neighborhood: | Willow Bend | Bath: | 3 |
| Tax Year: | Acreage: | ||
| Year Built: | Basement: | ||
| MLS #: | 345627 | Garage: | |
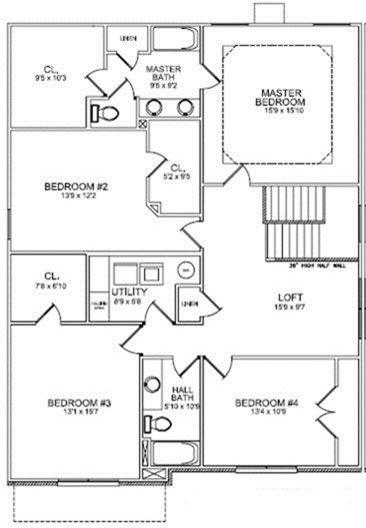
Description: This two story home offers great square footage values and a very livable design. The first floor includes an open layout, combined living and formal dining room defined by columns. The kitchen has upgraded cabinets and offers both breakfast bar dining and a spacious breakfast area and is open to the generously sized family room with a stone wood burning fireplace. The master suite includes a roomy bath with a luxurious tiled garden tub, separate fully tiled shower (with door) and a 4x4 window and a spacious walk-in closet. Additional extras include: full unfinished walkout basement, oversized deck, an upgraded front door, raised vanities, ceiling fans, smooth ceilings & over sized baseboards. The three additional bedrooms offer great closet space and generous square footages. A loft completes the upstairs and is perfect for a playroom, casual TV room, study, or home office. The laundry room is located upstairs for convenience and includes a built-in folding counter. 36RB
|
Amenities
|
Schools |
- REAL ESTATE TOOLS
, KY
- ADVERTISING
- Feature your AD here!
Call (502) 863-1111 Today
- ADVERTISING
- Feature your AD here!
Call (502) 863-1111 Today
- ADVERTISING
- Feature your AD here!
Call (502) 863-1111 Today

Add to Clipboard
View Clipboard
Email This Listing
Schedule a Viewing
Print This Page