- SEARCH ALL Listings
-
- MORTGAGE CALCULATOR
-
Price: $ Interest Rate: Down Payment: $ Mortgage Term: Payment: $
$291,344Residential in Lexington


| Address: | |||
| Location: | , KY | Price: | $291,344 |
| Zip Code: | Size: | 0 | |
| County: | Fayette | Bedroom: | 4 |
| Neighborhood: | Glasford | Bath: | 3 |
| Tax Year: | Acreage: | ||
| Year Built: | Basement: | ||
| MLS #: | 345625 | Garage: | |
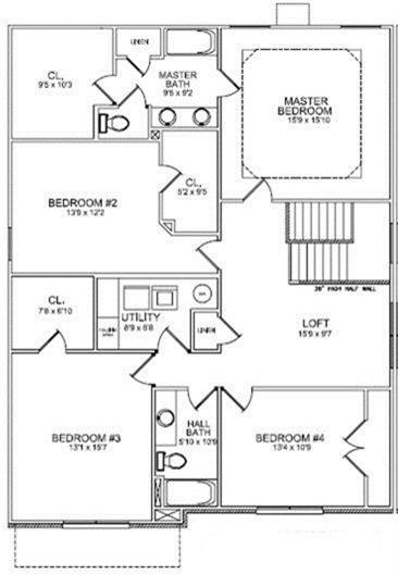
Description: This home offers great square footage values and a very livable design all situated on a full unfinished basement backing to green space. Extras include: nine ft ceilings, wood burning stone fireplace, 4x4 window over a tiled garden tub, fully tiled shower with glass doors, upgraded front door, upgraded kitchen cabinets, ceilings fans, upgraded trim package, smooth ceilings, upgraded carpet and padding, lots of laminate & ceramic tile flooring, granite countertops, stainless steel appliances and a garage door opener with remotes. The first floor includes a combined living and formal dining room defined by columns. The kitchen offers both breakfast bar dining and a spacious breakfast area and is open to the generously sized family room with optional fireplace. A loft completes the upstairs and is perfect for a playroom, casual TV room, study, or home office. The laundry room is located upstairs for convenience and includes a built-in folding counter and much much more... 12SA
|
Amenities
|
Schools |
- REAL ESTATE TOOLS
, KY
- ADVERTISING
- Feature your AD here!
Call (502) 863-1111 Today
- ADVERTISING
- Feature your AD here!
Call (502) 863-1111 Today
- ADVERTISING
- Feature your AD here!
Call (502) 863-1111 Today

Add to Clipboard
View Clipboard
Email This Listing
Schedule a Viewing
Print This Page