| SteamboatHomefinder.com Listing Detail | |||||||||||||||||||||||||||||||||||||||||||
|
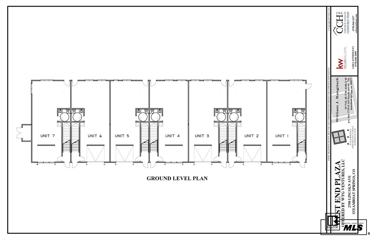
$408,000Commercial Mixed Use in Steamboat Springs
![]()
Description: Steamboats newest mixed-use development is now on the market. This entire complex offers hard to find mixed use units. There is an opportunity for a potential of possibly four buildings or building sites, totaling approximately 28 units. Possibly two of the lots are for sale or build- to-suit, design your own building to fit the needs of your business. Building #1 offers the option of commercial or office on the lower level and office, storage or residential on the upper floor. Mountain/Contemporary style thoughtfully designed and performance built to be energy efficient to meet the needs of the business owner. Each unit is approx. 22.5" x 47.5" The ground floor level is completely finished and features 3-phase power, a bath, lighting, 10' x 14' overhead door (or an option of windows in its place) provides plenty of room to store large toys or to unload tractor-trailers. This level has a 17' ceiling, offering the potential to add a third level, adding another 1067 s.f. requiring planning, engineering and building department approvals. The upper level is perfect for a future residential apartment, office or showroom. It is currently finished as a shell, allowing the owner an opportunity to choose additional upgrade finishes. This level will have heat, lights, 9' ceiling and plumbing stubbed up into the floor... step out the sliding glass door onto your private deck to enjoy the views. Optional residential open floor plans have been well designed with high-end finishes; granite, island with seating, walk-in pantry, fireplace, large windows with lots of natural light, laundry room, and a huge amount of additional storage and deep closet space plus walk-in closets in the bedrooms. The developer of this project is looking for conscientious owners to join in this unique high-end ownership opportunity that is truly set apart from the rest. This project will have a well-managed HOA dedicated to professional standards along with ample parking spaces and one designated parking space for each unit.
2700 Lincoln Ave Steamboat Springs, CO
|
|||||||||||||||||||||||||||||||||||||||||||







Add to Clipboard
View Clipboard
Schedule a Viewing
Print This Page