- SEARCH undefined County
-
- MORTGAGE CALCULATOR
$623,000Residential in


| Address: | 34LOT QUIET MEADOW WAY | ||
| Location: | HAMPSTEAD, MD | Price: | $623,000 |
| Zip Code: | 21074 | Size: | 0 |
| County: | CARROLL | Bedroom: | 4 |
| Neighborhood: | CRESTVIEW MEADOWS | Bath: | 3.5 |
| Tax Year: | Acreage: | 3.15 | |
| Year Built: | 2012 | Basement: | Y |
| MLS #: | CR7856314 | Garage: | 2 |
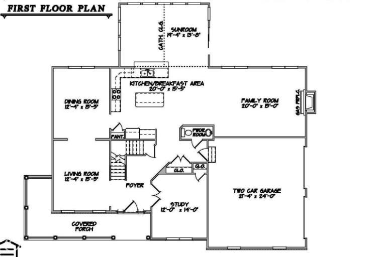
Description: To be built, upscale custom homes, we customize, Andersen tilt windows, part stone front, 9' ceilings on 1st flr, hardwd foyer, Sunrm, fam rm w/gas FP, Cherry cabinets, granite kitchen counters, SS appl, MBR tray ceiling, luxury bath, buddy bath, BR w/private bath, all BR's have w-in closets, r-in bsmt w/exit, r-in bath, level 3.15 acres, 25 Lot sub when completed $5K to CC w/restrictions MHBR#802
Amenities
|
Schools SPRING GARDEN SHILOH NORTH CARROLL |
- REAL ESTATE TOOLS
34LOT QUIET MEADOW WAY HAMPSTEAD, MD
- ADVERTISING
- ADVERTISING
- ADVERTISING

Add to Clipboard
View Clipboard
Email This Listing
Schedule a Viewing
Print This Page