- SEARCH undefined County
-
- MORTGAGE CALCULATOR
$1,998,000Residential in


| Address: | 8900 HOLLY LEAF LN | ||
| Location: | BETHESDA, MD | Price: | $1,998,000 |
| Zip Code: | 20817 | Size: | 0 |
| County: | MONTGOMERY | Bedroom: | 6 |
| Neighborhood: | AVENEL | Bath: | 7.5 |
| Tax Year: | Acreage: | 2.069995 | |
| Year Built: | 1985 | Basement: | Y |
| MLS #: | MC7848070 | Garage: | 3 |
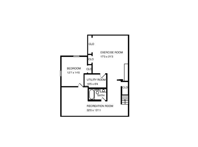
Description: Stunning renovation by Natelli Builders. Grand foyer,spacious living room, gracious over-sized dining room, gourmet granite kitchen with center island and breakfast area. 6 bedrooms including private guest quarters, fabulous recreation room, large deck and fenced pool. 3-car garage,circular drive all on 2+ acres of lush landscaping on prestigious Holly Leaf Lane. Main level guest suite.
Amenities
|
Schools |
- REAL ESTATE TOOLS
8900 HOLLY LEAF LN BETHESDA, MD
- ADVERTISING
- ADVERTISING
- ADVERTISING

Add to Clipboard
View Clipboard
Email This Listing
Schedule a Viewing
Print This Page