- SEARCH undefined County
-
- MORTGAGE CALCULATOR
$1,150,000Residential in BETHESDA


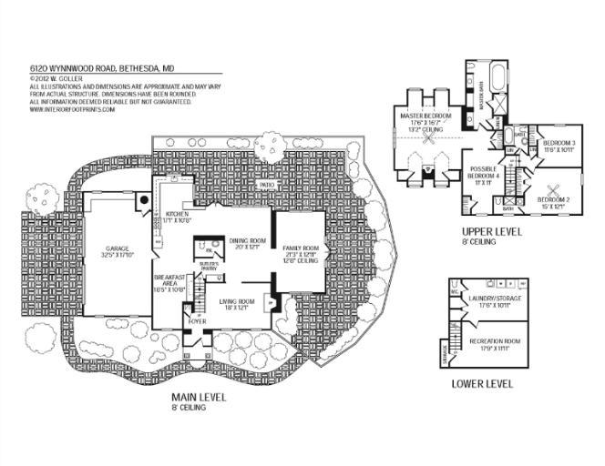
| Address: | 6120 WYNNWOOD RD | ||
| Location: | BETHESDA, MD | Price: | $1,150,000 |
| Zip Code: | 20816 | Size: | 0 |
| County: | MONTGOMERY | Bedroom: | 4 |
| Neighborhood: | WOODACRES | Bath: | 3.5 |
| Tax Year: | Acreage: | 0.278466 | |
| Year Built: | 1941 | Basement: | Y |
| MLS #: | MC7813181 | Garage: | 2 |
Description: Masterfully expanded & renovated,this elegant Georgian-Style home includes limestone,granite,marble,hardwood flrs, furniture grade built-ins,vaulted ceilings,a dream Kitchen, Dining rm.seats 12,very luxurious Bathrooms,oversized 2 car heated garage, 4 bedrooms 3-1/2 baths,Butler'sPantry,Family Rm,Wrap around Patio extends living area.Convenient to Parks,transportation,airports,World Bank,IMF
Amenities
|
Schools WOOD ACRES PYLE WALT WHITMAN |
- REAL ESTATE TOOLS
6120 WYNNWOOD RD BETHESDA, MD
- ADVERTISING
- ADVERTISING
- ADVERTISING

Add to Clipboard
View Clipboard
Email This Listing
Schedule a Viewing
Print This Page