- SEARCH undefined County
-
- MORTGAGE CALCULATOR
$1,495,000Residential in


| Address: | 6214A VERNE ST | ||
| Location: | BETHESDA, MD | Price: | $1,495,000 |
| Zip Code: | 20817 | Size: | 0 |
| County: | MONTGOMERY | Bedroom: | 5 |
| Neighborhood: | COUNTRY CLUB VILLAGE | Bath: | 3.5 |
| Tax Year: | Acreage: | 0.318274 | |
| Year Built: | 2012 | Basement: | Y |
| MLS #: | MC7799351 | Garage: | 2 |
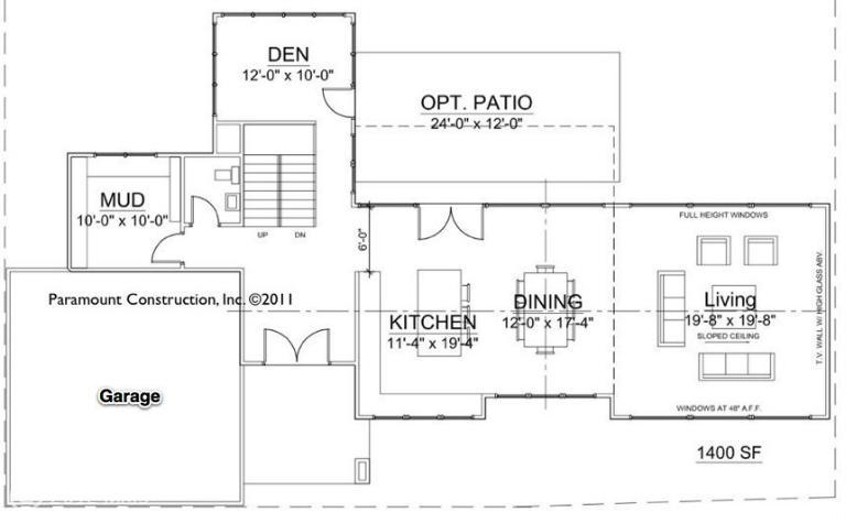
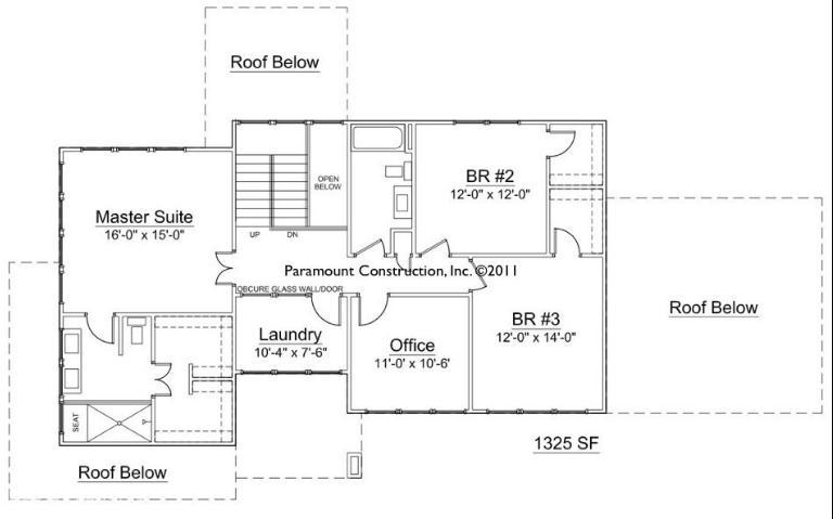
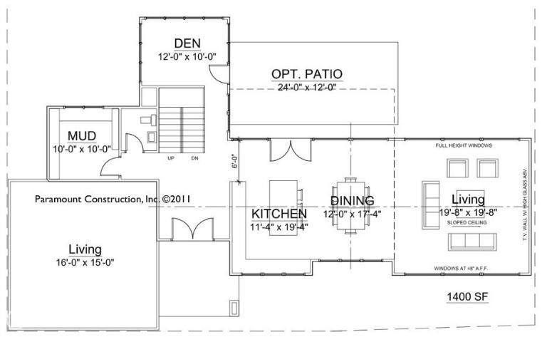
Description: New home to be built by Award winning architect/builder Paramount Construction. Exciting open floor plan,Gourmet SS appliances, Brookhaven ,Woodmode Cabinets,Granite ktch counters, Wood floor & 9 ft. ceiling on main level, Insulated windows, Many home plans to choose and customize. Selling 2 lots; New subdivided lot will yield approx 13,864 SF with new home. Walk lot by appt. only please.
Amenities
|
Schools WALT WHITMAN |
- REAL ESTATE TOOLS
6214A VERNE ST BETHESDA, MD
- ADVERTISING
- ADVERTISING
- ADVERTISING

Add to Clipboard
View Clipboard
Email This Listing
Schedule a Viewing
Print This Page