- SEARCH undefined County
-
- MORTGAGE CALCULATOR
$310,900Residential in


| Address: | 91 LEE RD | ||
| Location: | CHESTER, MD | Price: | $310,900 |
| Zip Code: | 21619 | Size: | 0 |
| County: | ESSHOMES | Bedroom: | 4 |
| Neighborhood: | NONE | Bath: | 2.5 |
| Tax Year: | Acreage: | 0.259481 | |
| Year Built: | 2011 | Basement: | N |
| MLS #: | QA7556325 | Garage: | |
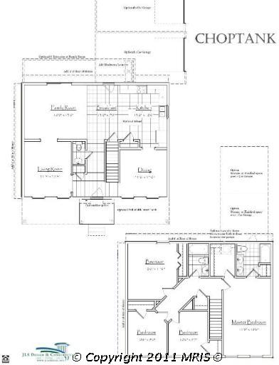
Description: Brand New Community on Kent Island -The "Choptank" is a spacious Colonial, 2,000 sqft,4 Bedrooms,Separate Family-Living-Dining Room,Breakfast Room,Large Country Kitchen and more!Several Lots and House Plans to choose from-starting in the mid $200's. Bring your own plans-Custom Built for YOU! Lots are also available to purchase.Call April today for your Free Info Package!
Amenities
|
Schools |
- REAL ESTATE TOOLS
91 LEE RD CHESTER, MD
- ADVERTISING
- ADVERTISING
- ADVERTISING
Add to Clipboard
View Clipboard
Email This Listing
Schedule a Viewing
Print This Page